 |
 |
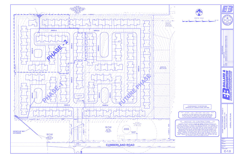
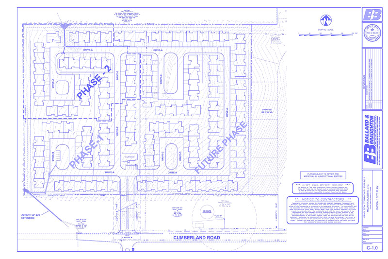
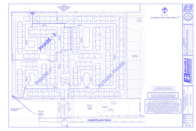
| Hamilton
Commons Townhomes |
 |
|
 |
 |
Planning
and Design for the drainage and utility
infrastructure of the development. Civil
plans included; Roadway Plan and Profiles
for Street grades, drainage and utilities
as well as a Storm Water Pollution Protection
Plan (SWPPP) and associated documents.
www.hamiltoncommons.net |
 |
|
 |
 |
 |
 |
| Multi-Family/Townhomes |
| |
 |
 |
| Tyler, Texas |
| |
 |
 |
| Project
is currently under development |
| |
 |
 |
| 19 +/- Acres |
| |
 |
 |
City of
Tyler and TCEQ (Gov entities) |
 |
|
 |
|