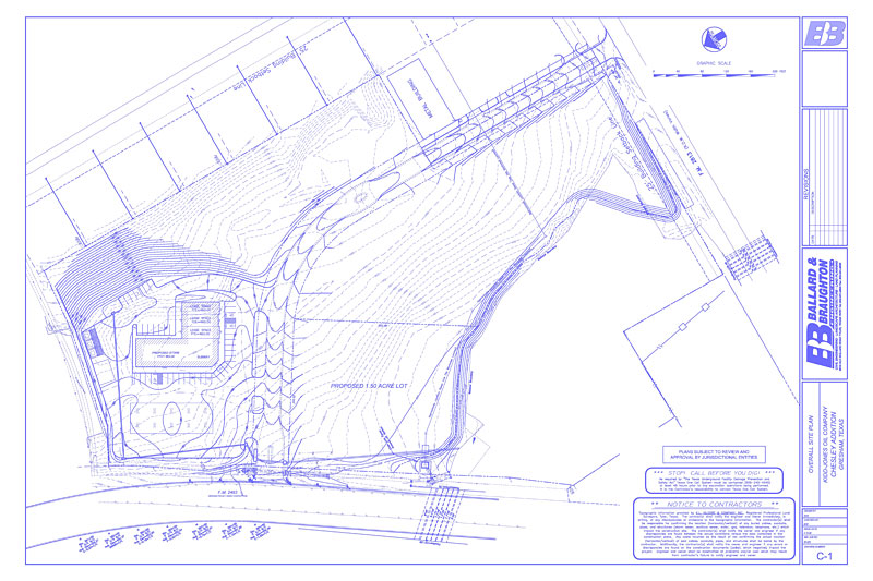
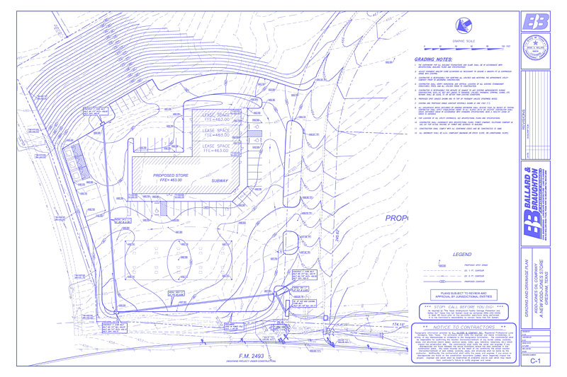
Kidd-Jones Oil Company

Gresham Gas Station and Adjacent Infrastructure
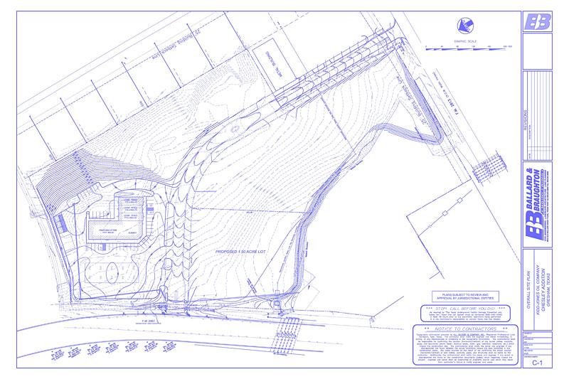
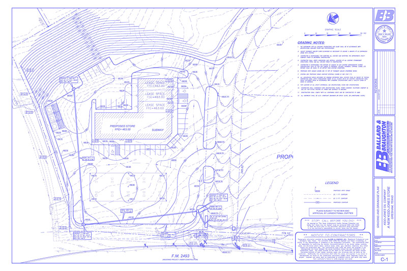
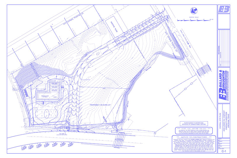
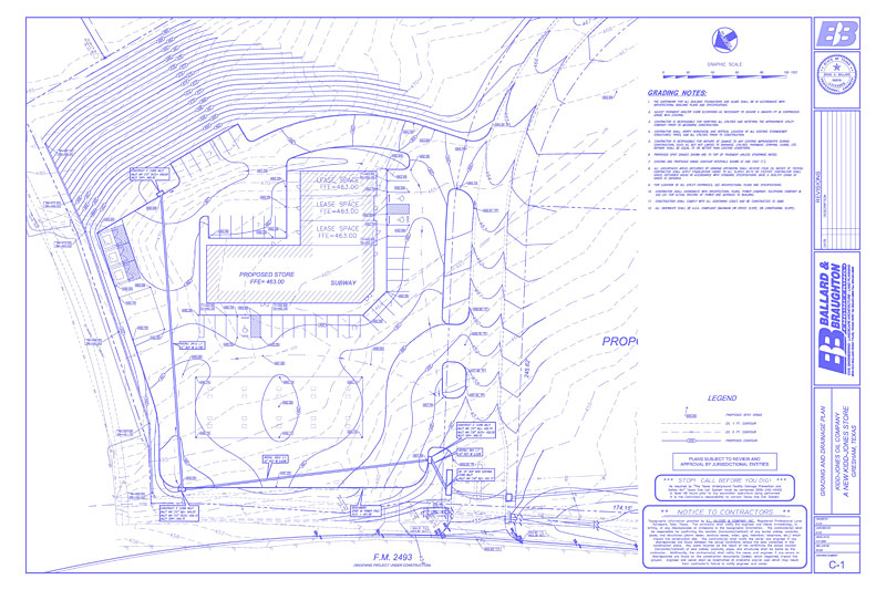
Provide Civil Construction plans for an approximate 10,000 s.f. commercial building and gas pump island, associated parking and utilities. Civil plans included; site, grading, drainage and utility plans as well as a Storm Water Pollution Protection Plan (SWPPP) and associated documents.

Project Notes: Required FEMA floodplain submittals.
Commercial/Retail
 
Gresham, TX
 
Project has been constructed
 
5 +/- acres
 
City of Tyler, TxDOT and TCEQ
(Gov entities)
BALLARD & BRAUGHTON, PLLC   /   3815 OLD BULLARD ROAD  /   TYLER, TEXAS 75701    + Phone: 903-531-9800    + Fax: 903-531-9839

ABOUT US  |  OUR SERVICES  |  FEATURED PROJECTS  |  REFERENCES  |  LINKS  |  EMPLOYMENT OPPORTUNITIES  |  CONTACT US

© Ballard & Braughton PLLC, All Rights Reserved. |  Website Designed by 3 Degree Media, Inc.