 |
 |
| Steve
Goates |
 |
|
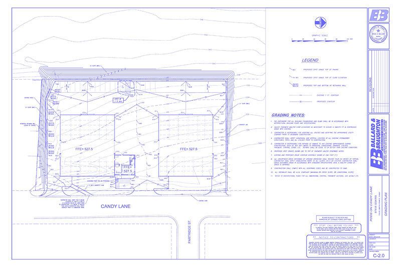
PODS Storage Building Facility |
 |
|
 |
 |
Provide
Civil Construction plans for an approximate
15,000 s.f. commercial building, associated
parking and utilities. Civil plans included;
site, grading, drainage and utility
plans as well as a Storm Water Pollution
Protection Plan (SWPPP) and associated
documents.
www.pods.com |
 |
|
 |
 |
 |
 |
| Commercial/Retail |
| |
 |
 |
| Tyler, Texas |
| |
 |
 |
| Project
has been constructed |
| |
 |
 |
| 2 +/- Acres |
| |
 |
 |
City of
Tyler, TxDOT and TCEQ (Gov entities) |
 |
|
 |
|